![]() |
![]() |
| 式中: Aρ--屋頂通風器排風面積 Gρ ——排風量 g--重力加速度 Pρ--屋頂通風器排風口空氣密度 △h--屋頂通風器頂部距中和界高度 m Pw--進風口處空氣密度 kg/m3 Pρ--室內空氣平均密度 kg/m3 Pnρ=p,1+19。/(簡化取值) Pn--室內工作面氣密度 kg/m3 ε--屋頂通風器排風口局部阻力系數 |
![]() |
ZH型屋頂通風器=1.68
本公司經計算,編制了“ZH型屋頂通風器單位長度排風量參考表”,給出各種屋頂通風器海米長的排風量,采用本屋頂通風器時可從表中直接查得在相關條件時的排風量及確定相應屋頂通風器規格。
該表編制條件為:
(1)排風量只考慮熱壓作用;
(2)室內工作面溫度tw+4cC考慮
△h--屋頂通風器頂部距中和界高度 m
V--每米長屋頂通風器排風量 m3/h·m
tρ--屋頂通風器排風計算溫度 ℃
tω--夏季通風室外計算溫度 ℃
2、查表選擇法:

![]() |
![]() |
![]() | |
三、技術經濟比較
ZH型屋頂通風器由于其優越的通風性能,與傳統的矩形屋頂通風器相比,在同樣生產設備散熱量的情況下,所需屋頂通風器長度可大大縮短。

經比較,采用先進的ZH型屋頂通風器,所需長度與傳統矩形天窗相比,可縮短40%,其綜合造價較低,且結構簡化,造型美觀,尤其與鋼結構彩色壓型鋼板廠房配合,更顯輕盈秀麗。
四、屋頂通風器的安裝及訂貨
弧線形組合式屋頂通風器可以單排布置,也可以雙排或多排布置,可布置在雙坡屋面的屋脊處,亦可布置在斜屋面上。
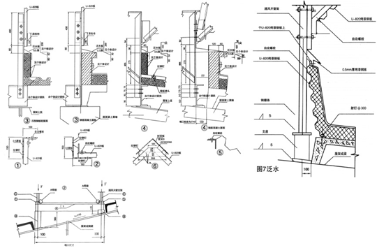
1、該產品和屋面體系的連接有多種方法,圖3及圖4分別給出安裝在鋼結構上(布置型式1)和混凝土上(布置型式Ⅱ)的安裝節點詳細供設計者參考。
2、安裝完畢,需做泛水,泛水做法可參考圖7.

注:該詳圖按6米柱距,屋架及鋼梁坡度1:10,型號是ZH-4500-800,其 它柱距坡度、型號參照執行。
訂貨須知
1、訂貨時,請填寫清楚屋頂通風器型號、規格、總長度、風荷載、顏色等。例如:某工程選用ZH型天窗,喉口寬度為4500mm,風荷載為800Pa,總長度為1400m,外表面為海藍,訂貨時可以寫作:ZH—4500—800型L=1400m,海藍。
2、本公司亦可根據用戶需要,提供非標準規格屋頂通風器。如用戶有特殊要求,可來函協商。
3、產品出廠時,除主體設備外,還供應專用配套的掛式控制箱及端子箱。除聯結電纜原則上凡屋頂通風器內至端子箱由廠家供給,端子箱至掛式控制箱及電源電纜等均由用戶自備。